BOLIGVELGER
OM LINJEN
SOLSTUDIE
NYHETSFEED
GALLERI
DOKUMENTER
FOR NABOER
MELD INTERESSE
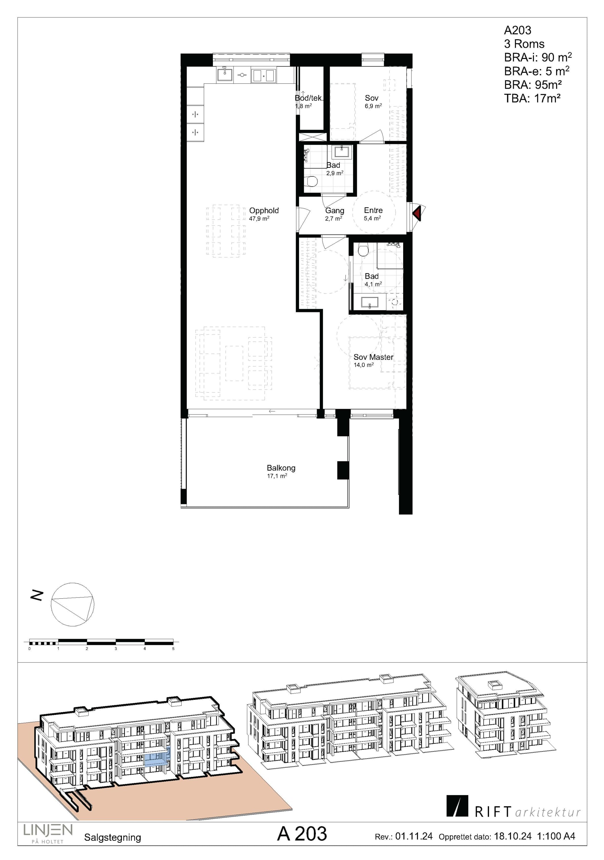
A 203
Solgt
Status
Solgt
ID
A 203
Pris
Soverom
3
BRA-i
90
BRA-e
5
Vedlegg
Prospekt
Etasje
2
Parkeringsplasser
TBA m²
17
Omkostninger
Totalpris
Meld interesse
Fyll inn navn
Fyll inn telefonnummer
Fyll inn e-post
Jeg ønsker å bli kontaktet i samtykke med denne
personvernerklæringen
Send
Powered by
Plyo
| Design by
Gress Oslo
Tilbake til Bygg A